Đó là một trong những nội dung chủ yếu của Quyết định số 772/QĐ-UBND “Về việc chấp thuận chủ trương đầu tư và chấp thuận nhà đầu tư” đối với Công ty cổ phần KCN Sài Gòn - Nhơn Hội mà ông Nguyễn Tự Công Hoàng, Phó chủ tịch UBND tỉnh, Trường ban Quản lý Khu kinh tế tỉnh Gia Lai vừa ký ban hành…

Theo Quyết định 772/QĐ-UBND: Công ty cổ phần KCN Sài Gòn - Nhơn Hội (Địa chỉ: Lô A2-01, đường N3, Khu công nghiệp Nhơn Hội - Khu A, phường Quy Nhơn Đông, tỉnh Gia Lai) được triển khai dự án “Đầu tư xây dựng và kinh doanh cơ sở hạ tầng KCN Cát Trinh), tại địa bàn xã Phù Cát, tỉnh Gia Lai.
Theo đó, dự án có quy mô diện tích đất sử dụng trên 368 ha, với những sản phẩm, dịch vụ cung cấp, gồm:
Kinh doanh kết cấu hạ tầng kỹ thuật khu công nghiệp với tổng diện tích 368,1 ha (san nền, giao thông nội bộ, cấp điện, cấp nước, thoát nước mưa - nước thải, viễn thông, chiếu sáng, cây xanh, phòng cháy chữa cháy).
Cho thuê đất công nghiệp đã hoàn thiện cơ sở hạ tầng; thu hút các ngành nghề đầu tư theo mô hình Khu công nghiệp đa ngành, phù hợp quy hoạch được phê duyệt và báo cáo đánh giá tác động môi trường.
Cung cấp các dịch vụ phụ trợ, hỗ trợ sản xuất và quản lý doanh nghiệp trong khu công nghiệp…

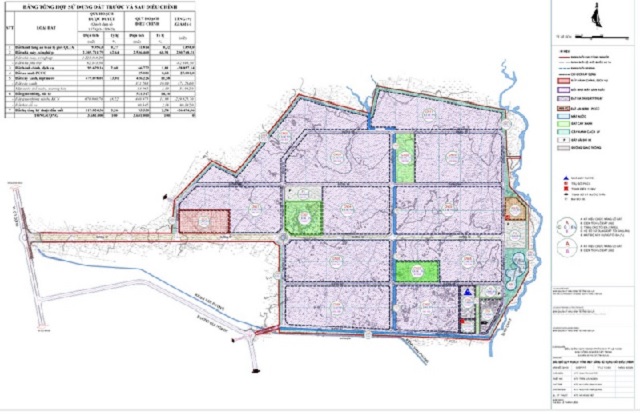
Quy hoạch phân khu tỷ lệ 1/2000 KCN Cát Trinh. Ảnh: VH Cụ thể, dự án “Đầu tư xây dựng và kinh doanh cơ sở hạ tầng KCN Cát Trinh” có tổng vốn đầu tư 2.554 tỷđồng, thời hạn hoạt động 70 năm, kể từ ngày có Quyết định cho thuê đất của cơ quan Nhà nước có thẩm quyền…
Viết Hiền

























